Iepirkumu dati no 2007 līdz 2016 gadam
| Nosaukums/Numurs Sakārtot dilstošā secībā | Apraksts | Publicēts | Faili |
|---|---|---|---|
| Papildus informācija IUB mājas lapā izsludinātam iepirkumam ID Nr. LLU 2011/23/objekti | LLU 1., 5., un 6.dienesta viesnīcu bēniņu siltināšana | 2011-08-10 | 7_pielik.._(2).xls Darbu_ap...d.v.xls Nolikums.doc Darbu_ap..d.v..xls Darbu_ap..d.v..xls |
| Papildus informācija IUB mājas lapā izsludinātam iepirkumam , ID Nr. LLU 2011/27/objekti | 3.stāva mazgātuves un 4.stāva WC remonts un logu nomaiņa ( 20 gab.) LLU 1.dienesta viesnīcā | 2011-09-14 | Nolikums..1_DV.doc Darbu_ap.._(2).xls |
| Papildus informācija IUB mājas lapā izsludinātam iepirkumam ID Nr. LLU 2011/29/objekti | 4.stāva tualetes remonts un jumta konstrukciju apstrāde ar pretaizdegšanās līdzekļi LLU 7.dienesta viesnīcā, Lielā ielā 17,Jelgavā | 2011-09-14 | Darbu_ap..omi.xlsx Nolikums..7_DV.doc |
| Papildus informācija IUB mājas lapā izsludinātam iepirkumam ID Nr. LLU 2011/35/objekti | LLU 10.dienesta viesnīcas 2. - 5. stāva gaiteņu remonts | 2011-10-20 | LLU_10_D..jomi.xls Nolikums..0.DV.doc |
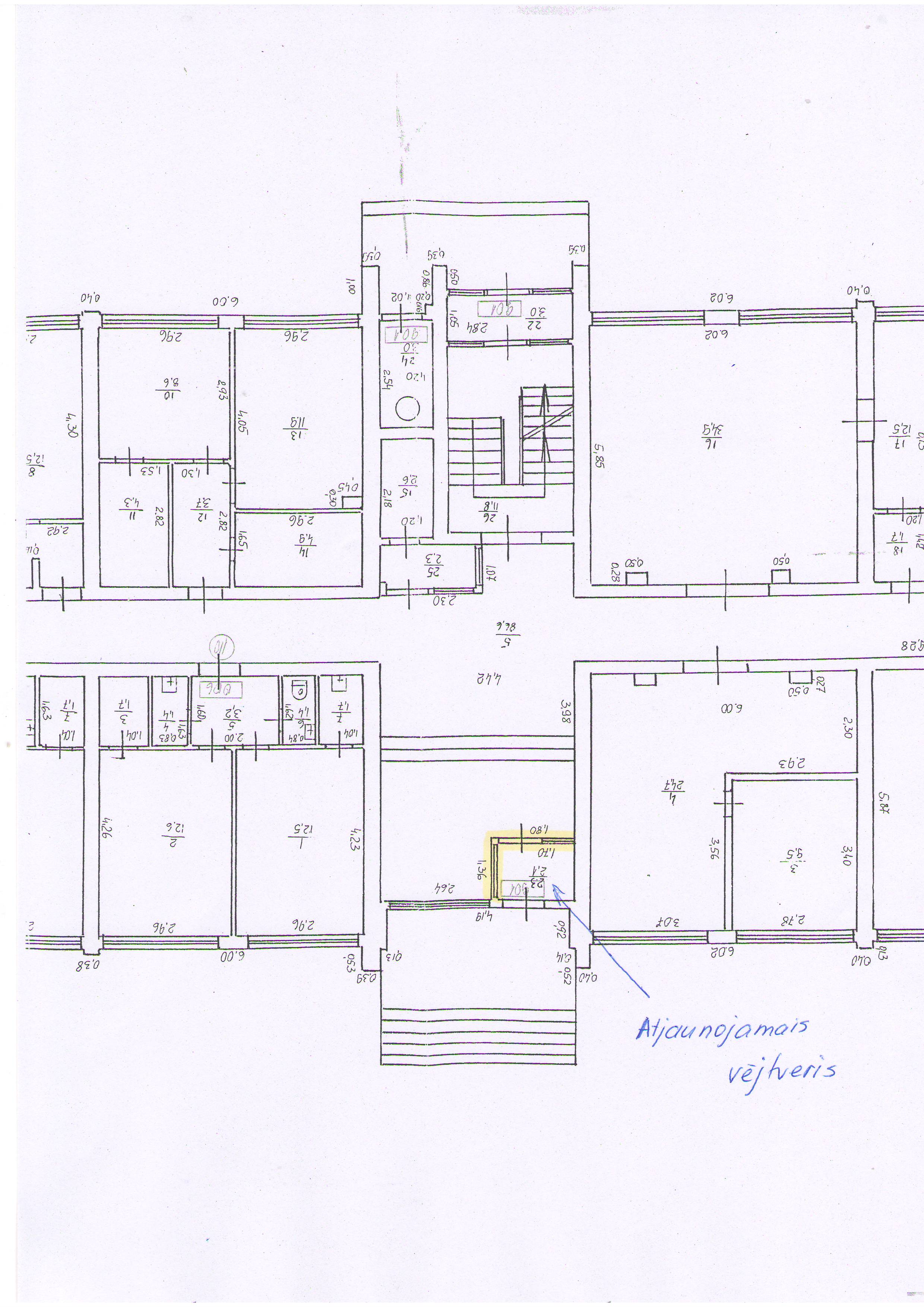
| Papildus informācija IUB mājas lapā izsludinātam iepirkumam Id. Nr. LLU 2011/36/objekti | 1. un 2.stāva remonts, ieejas durvju nomaiņa un vējtvera atjaunošana LLU 9.dienesta viesnīcā | 2011-10-24 | Image.JPG Darbu_apjomi.xls Nolikums..9_DV.doc |
| Papildus informācija IUB mājas lapā izsludinātam iepirkumam Id.Nr. LLU 2011/37/objekti | LLU 7.dienesta viesnīcas 3.stāva tualetes remonts ” | 2011-12-01 | 2._Darbu..omi.xlsx 2_Noliku..7_DV.doc |
| Papildus informācija IUB mājas lapā izsludinātam iepirkumam ID Nr.LLU 2012/10/objekti | LLU 2.dienesta viesnīcas 4.stāva virtuves remonts | 2012-07-08 | Nolikums.doc |
| Papildus informācija IUB mājas lapā izsludinātam iepirkumam ID Nr. LLU 2012/13/ERAF/AK | Būvuzraudzības pakalpojumi Valdekas pils rekonstrukcijai | 2012-06-04 | Valdekas..nd_).doc Nolikums_(3).doc |
| Papildus informācija IUB mājas lapā izsludinātam iepirkumam ID Nr. LLU 2012/14/objekti | Automātiskās ugunsgrēka atklāšanas un trauksmes signalizācijas un zibens novadīšanas sistēmu projektu izstrāde un realizācija LLU sporta zāle ēkai Tērvetes ielā 91D, Jelgavā | 2012-09-27 | Jautāju..ldes.doc 6.pielikums.pdf Nolikums.doc |
| Papildus informācija IUB mājas lapā izsludinātam iepirkumam ID Nr. LLU 2012/1/AK | Būvuzraudzības pakalpojumi Veterinārmedicīnas fakultātes celtniecībai ERAF līdzfinansētā projekta „LLU mācību infrastruktūras modernizācija” ietvaros. | 2012-02-14 | Būvuzra..kums.doc |
| Papildus informācija IUB mājas lapā izsludinātam iepirkumam, Id.Nr. LLU 2012/2/ERAF/AK | LLU starpēku tīkla komutācijas mezgla telpas izbūve | 2012-05-03 | 06_Dat_PDF.zip UAS_PDF.zip Nolikums.doc Darba_ap..omi.xlsx 01_AR_PDF.zip 02_BK_PDF.zip VS_PDF.zip Kvalitā..tām.doc 03_EL_PDF.zip 04_AVK_PDF.zip Pielikumi.zip 05_AUG_PDF.zip LĪGUMA_..EKTS.doc |
| Papildus informācija IUB mājas lapā izsludinātam iepirkumam Id.Nr. LLU2012/6/ERAF/AK | Projektēšanas un autoruzraudzības pakalpojumu veikšana Pārtikas tehnoloģijas fakultātes būvniecībai | 2012-04-28 | Jautāju.._(3).doc 12.pielikums.JPG kulturas..ibas.pdf 14.pielikums.JPG Pielikum..15.1.zip Pielikum..15.2.pdf JAUTĀJU..LDES.doc NOLIKUMS.doc TEHNISK..CIJA.doc planosan..vums.pdf 11.pielikums.zip Jautāju.._(2).doc Labiekā..pili.JPG Aptuven..bai.JPG Jautāju..(_4).doc NOLIKUMS..2012.doc TEHNISK..012).doc jaut_atb.doc jaut_atb..2012.doc |
| Papildus informācija IUB mājas lapā izsludinātam iepirkumam ID Nr.LLU 2012/8/ERAF/AK | Valdekas pils rekonstrukcija | 2012-06-04 | EL_PDF.zip Darbu_ap..izie.xls Pielikum..2012.doc DA_1_1_j..cija.xls APU.zip UK,UKT_PDF.zip UAS,VS_PDF.zip TITULLAP.._pdf.zip SAT_PDF.zip IE_pdf.zip EL_OSMOZ.._pdf.zip DOP_pask..deka.pdf BK_PDF.zip AVK_PDF.zip ARD_pdf.zip AR_pdf.zip Nolikums.._(2).doc |
| Papildus informācija IUB mājas lapā izsludinātam iepirkumam Id. Nr. LLU2016/17-P/objekti | Ugunsaizsardzības sistēmas būvprojekta izstrāde Jelgavas pilī, Lielā ielā 2, Jelgavā | 2016-05-31 | Ugundzē..ums.docx |
| Papildus informācija IUB mājas lapā izsludinātam iepirkumam LLU 2011/28/objekti | LLU 8.dienesta viesnīcas logu nomaiņa. | 2011-09-19 | Picture_128.JPG Logu_dar..omi.xlsx Nolikums..8.DV.doc |
